• info@kompas.co.uk
  • 020 8590 0002

Project Overview

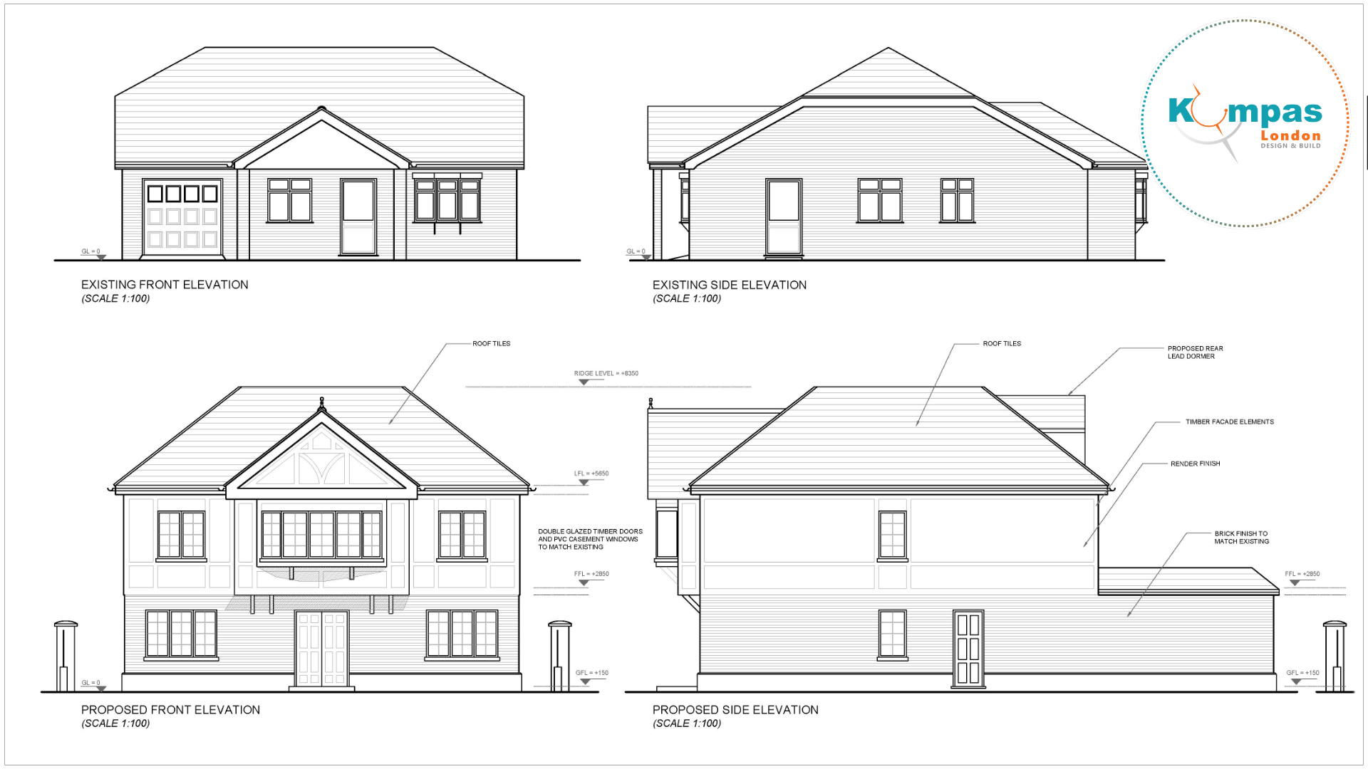
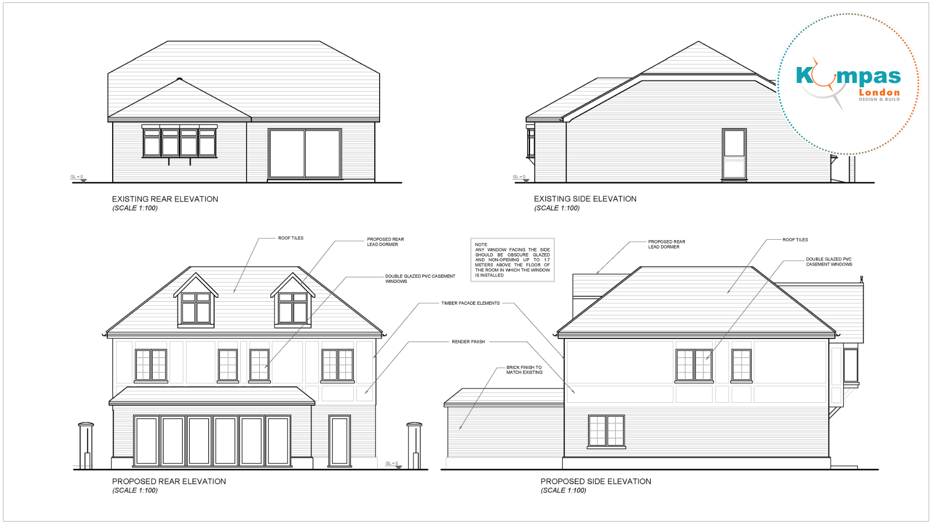
Proposed single storey rear part extension, erection of a first floor and loft conversion with rear dormers at 52 Herbert Road, Hornchurch, RM11 3LJ

The site is located within the urban area of Hornchurch and contains a single-storey detached house with integrated garage and with a barn hipped roof. It is located on the south side of Herbert Road within the Emerson Park Policy area, a residential road characterised by large detached dwellings, in good sized plots of varying architectural style and appearance. The site location is in flood zone 1, an area with a low probability of flooding. 

The design principle of the proposed development can be explained in the following points:

  1. Improvement in quality of the local housing stock.
  2. Respect the amenity of neighbouring properties and the future residents of the proposed development.
  3. The scale of the proposal is appropriate to its purpose and the functions it is to undertake. 

At the ground floor the dwelling house will consist of the following: reception, bathroom, utility room, kitchen / living room, a double bedroom, and the hall area housing the staircase leading to the first floor. At the first floor there will be four double bedrooms with corresponding en-suites and the hall area housing the staircase leading to the loft. The loft comprises the hall, two double bedrooms with corresponding en-suites. 

The floor area of the proposed dwelling house meets the council’s minimum floor area requirements and all the rooms’ sizes exceed the council’s minimum space standards.
The dwelling house will provide two car parking spaces following Council requirements. It is proposed to provide a secure cycle store / shed at the rear of the property. There is provision for two wheelie bins to be located at the rear.

The scale of the proposed dwelling would be acceptable in the street scene and would provide a satisfactory relationship with neighbours.

Project Detail

  • Client Name:
    N/A
  • Client Company Name:
    N/A
  • Project Start Date:
    2022-10-22
  • Project End Date:
    2022-12-22
  • Client Comment:
    N/A

Quick Contact

Recent Portfolio

See all our works that we do for our clients

Do you need architectural or construction services ?